Vanbarton Group - Marketing Center

Landlord Marketing Center

TPG Architecture

Location: New York, NY

Size: 19,918 SF

Year Completed: 2019

Design Role: Designer

Programming & Planning

Design Development

Construction Drawings

Construction Administration

Furniture Specifications

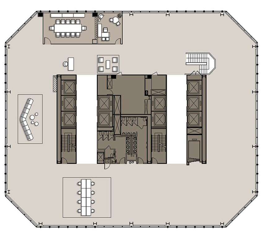
To help showcase the available office real estate at 425 Lexington, a marketing center was created. The design helps to highlight the ceiling heights, open floor plate and impressive views. Simple yet modern furnishings and architectural elements were strategically placed in the marketing center to create an inviting experience for future tenants. Sample test fit plans and renderings were also produced to help tenants envision what their space could look like within the building.

Marketing Plan

Marketing Renderings and Test Fit Plan

Consultant Team:

Architect/Interior Design Firm : TPG Architecture

Explore more projects.

Previous
Previous

New York Life

Next
Next

Consolidated Carpet